ceomax-pro主题已启用,当前站点还没有验证正版主题授权,暂不可使用 前往授权激活 获取正版授权
干货:CAD实用各种图例、布置图、大样图 - 西南工程联盟

干货:CAD实用各种图例、布置图、大样图

2023-04-12 0 1,829
ceomax-pro主题已启用,当前站点还没有验证正版主题授权,暂不可使用 前往授权激活 获取正版授权

干货:CAD实用各种图例、布置图、大样图

干货:CAD实用各种图例布置图大样图

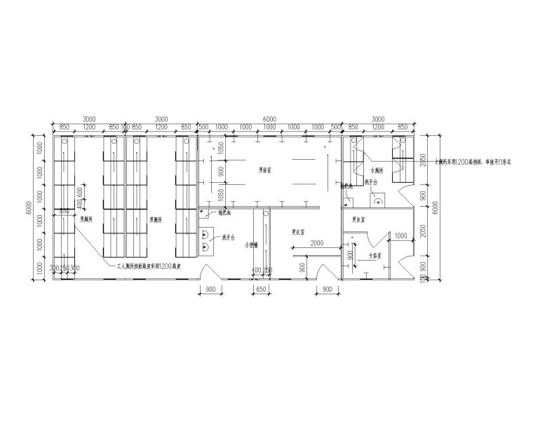
本资料为模板图例(CAD版)

200余个施工组织设计常用、示意图(等).zip

工程常用机械设备CAD图,含塔吊、挖机、罐车等

干货:CAD实用各种图例、布置图、大样图

干货:CAD实用各种图例、布置图、大样图

干货:CAD实用各种图例、布置图、大样图

干货:CAD实用各种图例、布置图、大样图

资源下载此资源下载价格为8积分,VIP 8折、终身VIP免费,请先
客服微信:18081414629

西南工程联盟专业建筑行业平台创立人、负责人

常见问题

相关文章

猜你喜欢
发表评论
暂无评论
官方客服团队

为您解决烦忧 - 24小时在线 专业服务